Rejestr uchwał Rady Miasta Bolesławiec przyjętych na X sesji

 

Rejestr uchwał przyjętych na X sesji - 22 czerwca 2011 r.
Numer Data W sprawie
X/63/11  22.06.2011 

pozbawienia części ulicy kategorii drogi gminnej na terenie miasta Bolesławiec

załączniki: nr 1nr 2

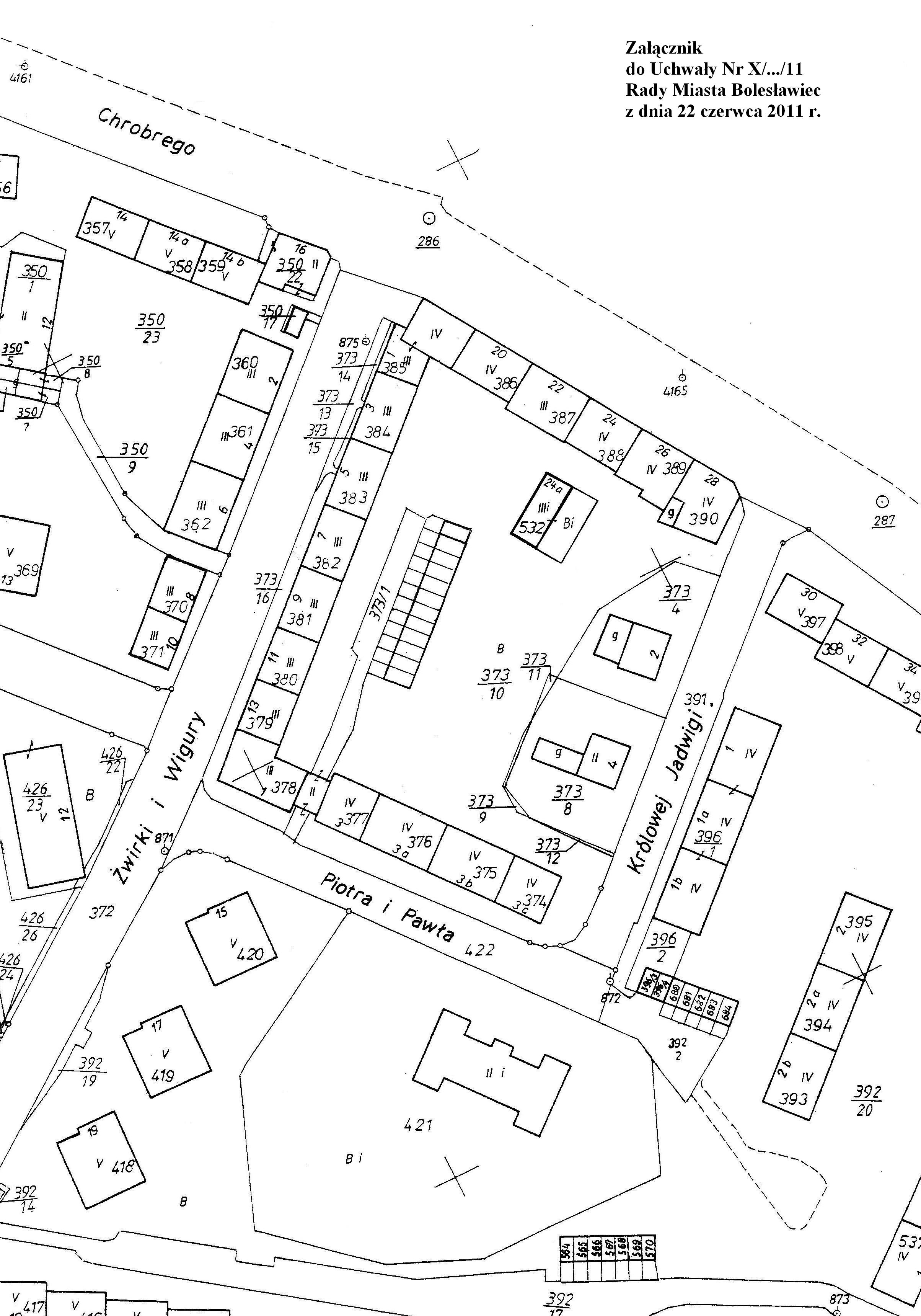
X/64/11  22.06.2011

przyznania dzierżawcy pierwszeństwa w nabyciu nieruchomości stanowiącej własność Gminy Miejskiej Bolesławiec

załącznik

X/65/11 22.06.2011 wyrażenia zgody na udzielenie bonifikaty od ceny sprzedaży lokalu mieszkalnego nr 2 położonego w budynku Nr 6 przy ul. Żwirki i Wigury w Bolesławcu
X/66/11 22.06.2011

wyrażenia zgody na udzielenie bonifikaty od ceny sprzedaży lokalu mieszkalnego w budynku jednorodzinnym położonym przy ul. Warszawskiej w Bolesławcu

X/67/11

22.06.2011

zmian w budżecie miasta na 2011 rok

załączniki: nr 1, nr 2, nr 3

X/68/11 22.06.2011

zmiany Wieloletniej prognozy Finansowej Gminy Miejskiej Bolesławiec na lata 2011-2021

załączniki: nr 1, nr 2, nr 3

X/69/11 22.06.2011 zatwierdzenia sprawozdania finansowego wraz ze sprawozdaniem z wykonania budżetu za 2010 rok 
X/70/11 22.06.2011 udzielenia Prezydentowi Miasta Bolesławiec absolutorium z tytułu wykonania budżetu za 2010 rok
X/71/11 22.06.2011

odpowiedzi na skargę wniesioną do Wojewódzkiego Sądu Administracyjnego we Wrocławiu na uchwałę nr VII/39/11 Rady Miasta Bolesławiec z dnia 30 marca 2011 r. w sprawie uchwalenia miejscowego planu zagospodarowania przestrzennego terenu zlokalizowanego w obrębie ulic: Dolne Młyny-Jezierskiego-Wróblewskiego w Bolesławcu

załącznik

 

Wytworzył:
Katarzyna Cieśla
(2011-06-29)
Udostępnił:
Cieśla Katarzyna
(2011-06-29 11:39:39)
Ostatnio zmodyfikował:
Chojnacka Elżbieta
(2020-08-14 13:36:38)
       DRUKUJ TĘ STRONĘ Obrazek drukarki