Zarządzenia Prezydenta Miasta 2009 rok 201-250
-
Załącznik do Zarządzenia Nr 250/09
Typ pliku: DOC, Rozmiar: 31 KBWytworzył:Prezydent Miasta BolesławiecUdostępnił:Parubocza Agnieszka(2009-08-28 09:22:12)Ostatnio zmodyfikował: -
Zarządzenie Nr 50/09 z dnia 21 sierpnia 2009 r. w sprawie przeznaczenia do sprzedaży nieruchomości gruntowej zabudowanej położonej przy ul. Kościuszki w Bolesławcu w drodze bezprzetargowej - wraz ze sprzedażą posadowionych na niej 3-budynków .
Typ pliku: DOC, Rozmiar: 32 KBWytworzył:Prezydent Miasta BolesławiecUdostępnił:Parubocza Agnieszka(2009-08-28 09:20:39)Ostatnio zmodyfikował:Parubocza Agnieszka(2009-08-28 09:21:10) -
Załącznik do Zarządzenia Nr 249/09
Typ pliku: DOC, Rozmiar: 34 KBWytworzył:Prezydent Miasta BolesławiecUdostępnił:Parubocza Agnieszka(2009-08-28 09:18:58)Ostatnio zmodyfikował:Parubocza Agnieszka(2009-08-28 09:19:31) -
Zarządzenie Nr 249/09 z dnia 21 sierpnia 2009 r. w sprawie przeznaczenia gruntu położonego w Bolesławcu przy ul. Kosiby do oddania w dzierżawę na okres 1 roku - w drodze bezprzetargowej.
Typ pliku: DOC, Rozmiar: 30 KBWytworzył:Prezydent Miasta BolesławiecUdostępnił:Parubocza Agnieszka(2009-08-28 09:18:14)Ostatnio zmodyfikował: -
Załącznik do zarządzenia Nr 248/09
Typ pliku: PDF, Rozmiar: 746 KBWytworzył:Prezydent Miasta BolesławiecUdostępnił:Parubocza Agnieszka(2009-08-28 14:36:01)Ostatnio zmodyfikował: -
Zarządzenie Nr 248/09 z dnia 19 sierpnia 2009 r. w sprawie ustanowienia służebności gruntowej na działce nr 132/6, położonej w obrębie 4 miasta Bolesławiec
Typ pliku: DOC, Rozmiar: 30 KBWytworzył:Prezydent Miasta BolesławiecUdostępnił:Parubocza Agnieszka(2009-08-28 09:10:32)Ostatnio zmodyfikował: -
Załącznik Nr 2 do Zarządzenia Nr 247/09
Typ pliku: XLS, Rozmiar: 0 bytesWytworzył:Prezydent Miasta BolesławiecUdostępnił:Parubocza Agnieszka(2009-08-28 09:08:51)Ostatnio zmodyfikował: -
Załącznik Nr 1 do Zarządzenia Nr 247/09
Typ pliku: XLS, Rozmiar: 0 bytesWytworzył:Prezydent Miasta BolesławiecUdostępnił:Parubocza Agnieszka(2009-08-28 09:08:18)Ostatnio zmodyfikował: -
Zarządzenie Nr 247/09 z dnia 19 sierpnia 2009 r. w sprawie zmian w budżecie miasta na 2009 r.
Typ pliku: DOC, Rozmiar: 65 KBWytworzył:Prezydent Miasta BolesławiecUdostępnił:Parubocza Agnieszka(2009-08-28 09:07:27)Ostatnio zmodyfikował: -
Zarządzenie Nr 246/09 z dnia 12 sierpnia 2009 r. w sprawie obniżenia ceny wywoławczej dla nieruchomości gruntowej, położonej w Bolesławcu przy ul. Śluzowej - przeznaczonej do sprzedaży pod zabudowę usługową - w drodze II przetargu ustnego nieograniczonego.
Typ pliku: DOCX, Rozmiar: 12 KBWytworzył:Prezydent Miasta BolesławiecUdostępnił:Parubocza Agnieszka(2009-08-18 09:58:18)Ostatnio zmodyfikował:Parubocza Agnieszka(2009-08-18 09:59:00) -
Zarządzenie Nr 245/09 z dnia 11 sierpnia 2009 r. w sprawie powołania Komisji do przeprowadzenia postępowania o udzielenie zamówienia publicznego na: Opracowanie inwentaryzacji budowlanej budynków mieszkalnych
Typ pliku: DOC, Rozmiar: 28 KBWytworzył:Prezydent Miasta BolesławiecUdostępnił:Parubocza Agnieszka(2009-08-18 09:56:50)Ostatnio zmodyfikował: -
Załącznik do Zarządzenia Nr 244/09
Typ pliku: DOCX, Rozmiar: 13 KBWytworzył:Prezydent Miasta BolesławiecUdostępnił:Parubocza Agnieszka(2009-08-18 09:54:52)Ostatnio zmodyfikował: -
Zarządzenie Nr 244/09 z dnia 11 sierpnia 2009 r. w sprawie przeznaczenia gruntów niezabudowanych, położonych w Bolesławcu przy ul. Śluzowej - do sprzedaży w drodze przetargu ustnego nieograniczonego.
Typ pliku: DOCX, Rozmiar: 11 KBWytworzył:Prezydent Miasta BolesławiecUdostępnił:Parubocza Agnieszka(2009-08-18 09:54:13)Ostatnio zmodyfikował: -
Zarządzenie Nr 242/09 z dnia 5 sierpnia 2009 r. w sprawie przyznania nagrody rocznej za 2008 r. Pani Annie Bober-Tubaj - Dyrektorowi Muzeum Ceramiki w Bolesławcu
Typ pliku: DOC, Rozmiar: 29 KBWytworzył:Prezydent Miasta BolesławiecUdostępnił:Parubocza Agnieszka(2009-08-11 12:44:50)Ostatnio zmodyfikował:Parubocza Agnieszka(2009-08-11 12:45:26) -
Zarządzenie Nr 241/09 z dnia 5 sierpnia 2009 r. w sprawie przyznania nagrody rocznej za 2008 r. Pani Halinie Majewskiej - Dyrektorowi Miejskiej Biblioteki Publicznej im. C.K. Norwida w Bolesławcu
Typ pliku: DOC, Rozmiar: 29 KBWytworzył:Prezydent Miasta BolesławiecUdostępnił:Parubocza Agnieszka(2009-08-11 12:39:08)Ostatnio zmodyfikował:Parubocza Agnieszka(2009-08-11 12:45:08) -
Zarządzenie Nr 240/09 z dnia 5 sierpnia 2009 r. w sprawie przeprowadzenia badań socjologicznych wraz z opracowaniem raportu o wynikach badań pn.: "Badanie opinii mieszkańców na temat działalności władz miejskich i jakości życia w Bolesławcu".
Typ pliku: DOC, Rozmiar: 44 KBWytworzył:Prezydent Miasta BolesławiecUdostępnił:Parubocza Agnieszka(2009-08-06 12:51:01)Ostatnio zmodyfikował:Parubocza Agnieszka(2009-08-06 12:51:30) -
Załącznik do Zarządzenia Nr 239/09
Typ pliku: DOC, Rozmiar: 28 KBWytworzył:Prezydent Miasta BolesławiecUdostępnił:Parubocza Agnieszka(2009-08-06 12:46:46)Ostatnio zmodyfikował: -
Zarządzenie Nr 239/09 z dnia 5 sierpnia 2009 r. w sprawie przeznaczenia gruntu położonego w Bolesławcu przy ul. Łasickiej do oddania w dzierżawę na okres 3 lat - w drodze bezprzetargowej.
Typ pliku: DOC, Rozmiar: 27 KBWytworzył:Prezydent Miasta BolesławiecUdostępnił:Parubocza Agnieszka(2009-08-06 12:46:06)Ostatnio zmodyfikował: -
Zarządzenie Nr 238/09 z dnia 3 sierpnia 2009 r. w sprawie udzielenia pełnomocnictwa
Typ pliku: DOC, Rozmiar: 36 KBWytworzył:Prezydent Miasta BolesławiecUdostępnił:Parubocza Agnieszka(2009-08-06 12:44:23)Ostatnio zmodyfikował: -
Załącznik do Zarządzenia Nr 237/09
Typ pliku: DOC, Rozmiar: 106 KBWytworzył:Prezydent Miasta BolesławiecUdostępnił:Parubocza Agnieszka(2009-08-06 12:41:48)Ostatnio zmodyfikował: -
Zarządzenie Nr 237/09 z dnia 3 sierpnia 2009 r. w sprawie przeznaczenia do sprzedaży -na rzecz najemców- lokali mieszkalnych wraz z oddaniem w użytkowanie wieczyste ułamkowych części gruntu zabudowanego budynkami - w trybie bezprzetargowym.
Typ pliku: DOC, Rozmiar: 23 KBWytworzył:Prezydent Miasta BolesławiecUdostępnił:Parubocza Agnieszka(2009-08-06 09:59:11)Ostatnio zmodyfikował: -
Załącznik do Zarządzenia Nr 236/09
Typ pliku: DOC, Rozmiar: 586 KBWytworzył:Prezydent Miasta BolesławiecUdostępnił:Parubocza Agnieszka(2009-08-06 09:57:52)Ostatnio zmodyfikował: -
Zarządzenie Nr 236/09 z dnia 3 sierpnia 2009 r. w sprawie przekazania nieruchomości, stanowiącej własność Gminy Miejskiej Bolesławiec, do zarządzania i administrowania Miejskiemu Zakładowi Gospodarki Mieszkaniowej w Bolesławcu.
Typ pliku: DOC, Rozmiar: 32 KBWytworzył:Prezydent Miasta BolesławiecUdostępnił:Parubocza Agnieszka(2009-08-06 09:57:19)Ostatnio zmodyfikował: -
Załącznik do Zarządzenia Nr 235/09
Typ pliku: DOC, Rozmiar: 37 KBWytworzył:Prezydent Miasta BolesławiecUdostępnił:Parubocza Agnieszka(2009-08-06 12:40:41)Ostatnio zmodyfikował: -
Zarządzenie Nr 235/09 z dnia 3 sierpnia 2009 r. w sprawie przeznaczenia do sprzedaży - na rzecz najemców - garaży wraz ze sprzedażą gruntu zabudowanego garażami - w trybie bezprzetargowym.
Typ pliku: DOC, Rozmiar: 29 KBWytworzył:Prezydent Miasta BolesławiecUdostępnił:Parubocza Agnieszka(2009-08-06 12:38:01)Ostatnio zmodyfikował:Parubocza Agnieszka(2009-08-06 12:39:00) -
Zarządzenie Nr 234/09 z dnia 28 lipca 2009 r. w sprawie powołania Komisji do przeprowadzenia postępowania o udzielenie zamówienia publicznego: REMONT I KONSERWACJA SCHODÓW BOCZNYCH RATUSZA MIEJSKIEGO. I ETAP - ROBOTY ZEWNĘTRZNE.
Typ pliku: DOC, Rozmiar: 28 KBWytworzył:Prezydent Miasta BolesławiecUdostępnił:Parubocza Agnieszka(2009-08-06 09:53:03)Ostatnio zmodyfikował: -
Zarządzenie Nr 233/09 z dnia 28 lipca 2009 r. w sprawie powołania Komisji do przeprowadzenia zamówienia publicznego w trybie licytacji elektronicznej na dostawę i instalację sprzętu i oprogramowania komputerowego dla Urzędu Miasta Bolesławiec.
Typ pliku: DOC, Rozmiar: 39 KBWytworzył:Prezydent Miasta BolesławiecUdostępnił:Parubocza Agnieszka(2009-07-30 11:01:48)Ostatnio zmodyfikował: -
Zarządzenie Nr 232/09 z dnia 27 lipca 2009 r. w sprawie zmian w składzie osobowym Rady Nadzorczej Zakładu Energetyki Cieplnej Spółki z o.o. w Bolesławcu
Typ pliku: DOC, Rozmiar: 29 KBWytworzył:Prezydent Miasta BolesławiecUdostępnił:Parubocza Agnieszka(2009-07-30 10:57:27)Ostatnio zmodyfikował:Parubocza Agnieszka(2009-07-30 11:02:38) -
Zarządzenie Nr 231/09 z dnia 24 lipca 2009 r. w sprawie wyrażenia zgody na używanie herbu Gminy Miejskiej Bolesławiec przez Zespół Biegłych Rewidentów "Buchalter" Sp. z o.o. w Bolesławcu
Typ pliku: DOC, Rozmiar: 29 KBWytworzył:Prezydent Miasta BolesławiecUdostępnił:Parubocza Agnieszka(2009-07-29 10:31:00)Ostatnio zmodyfikował:Parubocza Agnieszka(2009-07-30 10:58:14) -
Załącznik do Zarządzenia Nr 230/09
Typ pliku: DOC, Rozmiar: 32 KBWytworzył:Prezydent Miasta BolesławiecUdostępnił:Parubocza Agnieszka(2009-07-29 10:27:36)Ostatnio zmodyfikował: -
Zarządzenie Nr 230/09 z dnia 24 lipca 2009 r. w sprawie przeznaczenia gruntu położonego w Bolesławcu przy ul. Rynek - do oddania w dzierżawę na okres 1 roku - w drodze bezprzetargowej.
Typ pliku: DOC, Rozmiar: 30 KBWytworzył:Prezydent Miasta BolesławiecUdostępnił:Parubocza Agnieszka(2009-07-29 10:25:41)Ostatnio zmodyfikował: -
Zarządzenie Nr 229/09 z dnia 24 lipca 2009 r. w sprawie spłaty wierzytelności - z tytułu najmu lokalu mieszkalnego nr 2 przy ul. Żwirki i Wigury 12 w Bolesławcu na podstawie wniosku Nr FC/R/8/09 złożonego przez dłużnika w dniu 03 czerwca 2009 r.
Typ pliku: DOC, Rozmiar: 61 KBWytworzył:Prezydent Miasta BolesławiecUdostępnił:Parubocza Agnieszka(2009-07-30 10:56:17)Ostatnio zmodyfikował: -
Zarządzenie Nr 228/09 z dnia 24 lipca 2009 r. w sprawie spłaty wierzytelności - z tytułu najmu lokalu mieszkalnego nr 7 przy ul. Kościuszki 43 w Bolesławcu na podstawie wniosku Nr FC/R/7/09 złożonego przez dłużnika w dniu 21 maja 2009 r.
Typ pliku: DOC, Rozmiar: 61 KBWytworzył:Prezydent Miasta BolesławiecUdostępnił:Parubocza Agnieszka(2009-07-30 10:54:39)Ostatnio zmodyfikował: -
Zarządzenie Nr 227/09 z dnia 22 lipca 2009 r. w sprawie powołania Komisji do przeprowadzenia postępowania o udzielenie zamówienia publicznego na: Przebudowa ul. A. Asnyka w Bolesławcu
Typ pliku: DOC, Rozmiar: 27 KBWytworzył:Prezydent Miasta BolesławiecUdostępnił:Parubocza Agnieszka(2009-07-29 10:22:25)Ostatnio zmodyfikował: -
Załącznik Nr 10 do Zarządzenia Nr 226/09
Typ pliku: DOC, Rozmiar: 31 KBWytworzył:Prezydent Miasta BolesławiecUdostępnił:Parubocza Agnieszka(2009-07-24 08:53:49)Ostatnio zmodyfikował: -
Załącznik Nr 9 do Zarzadzenia Nr 226/09
Typ pliku: DOC, Rozmiar: 31 KBWytworzył:Prezydent Miasta BolesławiecUdostępnił:Parubocza Agnieszka(2009-07-24 08:52:54)Ostatnio zmodyfikował: -
Załącznik Nr 8 do Zarządzenia Nr 226/09
Typ pliku: DOC, Rozmiar: 30 KBWytworzył:Prezydent Miasta BolesławiecUdostępnił:Parubocza Agnieszka(2009-07-24 08:51:42)Ostatnio zmodyfikował: -
Załącznik Nr 7 do Zarządzenia Nr 226/09
Typ pliku: DOC, Rozmiar: 30 KBWytworzył:Prezydent Miasta BolesławiecUdostępnił:Parubocza Agnieszka(2009-07-24 08:50:28)Ostatnio zmodyfikował: -
Załącznik Nr 6 do Zarządzenia Nr 226/09
Typ pliku: DOC, Rozmiar: 30 KBWytworzył:Prezydent Miasta BolesławiecUdostępnił:Parubocza Agnieszka(2009-07-24 08:49:52)Ostatnio zmodyfikował:Parubocza Agnieszka(2009-07-24 08:50:42) -
Załącznik Nr 5 do Zarządzenia Nr 226/09
Typ pliku: DOC, Rozmiar: 30 KBWytworzył:Prezydent Miasta BolesławiecUdostępnił:Parubocza Agnieszka(2009-07-24 08:46:50)Ostatnio zmodyfikował: -
Załącznik Nr 4 do Zarządzenia Nr 226/09
Typ pliku: DOC, Rozmiar: 30 KBWytworzył:Prezydent Miasta BolesławiecUdostępnił:Parubocza Agnieszka(2009-07-24 08:44:38)Ostatnio zmodyfikował: -
Załącznik Nr 3 do Zarządzenia Nr 226/09
Typ pliku: DOC, Rozmiar: 30 KBWytworzył:Prezydent Miasta BolesławiecUdostępnił:Parubocza Agnieszka(2009-07-24 08:43:10)Ostatnio zmodyfikował: -
Załącznik Nr 2 do Zarządzenia Nr 226/09
Typ pliku: DOC, Rozmiar: 30 KBWytworzył:Prezydent Miasta BolesławiecUdostępnił:Parubocza Agnieszka(2009-07-24 08:42:11)Ostatnio zmodyfikował: -
Załącznik Nr 1 do Zarządzenia Nr 226/09
Typ pliku: DOC, Rozmiar: 34 KBWytworzył:Prezydent Miasta BolesławiecUdostępnił:Parubocza Agnieszka(2009-07-24 08:41:28)Ostatnio zmodyfikował: -
Zarządzenie Nr 226/09 z dnia 21 lipca 2009r. w sprawie powołania komisji egzaminacyjnej dla nauczyciela ubiegającego się o awans zawodowy na stopień nauczyciela mianowanego.
Typ pliku: DOC, Rozmiar: 43 KBWytworzył:Prezydent Miasta BolesławiecUdostępnił:Parubocza Agnieszka(2009-07-24 08:40:44)Ostatnio zmodyfikował: -
Załącznik do Zarządzenia Nr 225/09
Typ pliku: DOC, Rozmiar: 30 KBWytworzył:Prezydent Miasta BolesławiecUdostępnił:Parubocza Agnieszka(2009-07-23 15:28:31)Ostatnio zmodyfikował: -
Zarządzenie Nr 225/09 z dnia 20 lipca 2009r. w sprawie przeznaczenia gruntu położonego w Bolesławcu przy ul. Modrzewiowej do oddania w dzierżawę na okres 3 lat - w drodze bezprzetargowej.
Typ pliku: DOC, Rozmiar: 30 KBWytworzył:Prezydent Miasta BolesławiecUdostępnił:Parubocza Agnieszka(2009-07-23 15:28:00)Ostatnio zmodyfikował: -
Załącznik do Zarządzenia Nr 224/09
Typ pliku: DOC, Rozmiar: 24 KBWytworzył:Prezydent Miasta BolesławiecUdostępnił:Parubocza Agnieszka(2009-07-23 15:27:11)Ostatnio zmodyfikował: -
Zarządzenie Nr 224/09 z dnia 20 lipca 2009r. w sprawie sprzedaży na rzecz dotychczasowych użytkowników wieczystych, w drodze bezprzetargowej nieruchomości gruntowych, położonych w Bolesławcu przy ul. Daszyńskiego nr 29 ? stanowiących własność Gminy Miejskiej Bolesławiec
Typ pliku: DOC, Rozmiar: 25 KBWytworzył:Prezydent Miasta BolesławiecUdostępnił:Parubocza Agnieszka(2009-07-23 15:26:37)Ostatnio zmodyfikował: -
Załącznik do Zarządzenia Nr 223/09
Typ pliku: DOC, Rozmiar: 33 KBWytworzył:Prezydent Miasta BolesławiecUdostępnił:Parubocza Agnieszka(2009-07-23 15:25:34)Ostatnio zmodyfikował: -
Zarządzenie Nr 223/09 z dnia 20 lipca 2009r. w sprawie przeznaczenia gruntu niezabudowanego położonego przy ul. Granicznej w Bolesławcu do oddania w dzierżawę na okres 1 roku - w drodze bezprzetargowej.
Typ pliku: DOC, Rozmiar: 26 KBWytworzył:Prezydent Miasta BolesławiecUdostępnił:Parubocza Agnieszka(2009-07-23 15:25:02)Ostatnio zmodyfikował: -
Zarządzenie Nr 222/09 z dnia 20 lipca 2009r. do przeprowadzenia postępowania o udzielenie zamówienia publicznego: UTRZYMANIE ZIELENI W MIEŚCIE BOLESŁAWIEC.
Typ pliku: DOC, Rozmiar: 27 KBWytworzył:Prezydent Miasta BolesławiecUdostępnił:Parubocza Agnieszka(2009-07-23 15:23:58)Ostatnio zmodyfikował: -
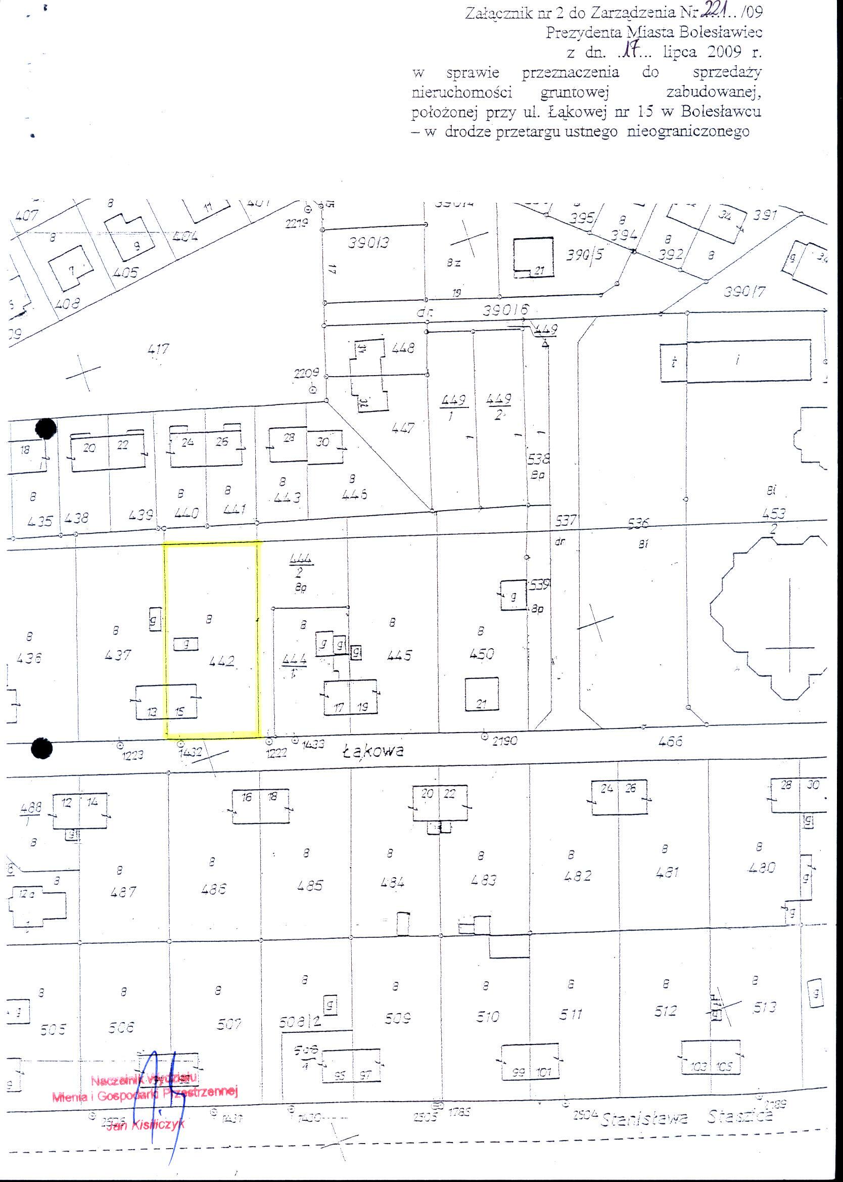
Załącznik Nr 2 do Zarządzenia Nr 221/09
Typ pliku: JPG, Rozmiar: 348 KBWytworzył:Prezydent Miasta BolesławiecUdostępnił:Parubocza Agnieszka(2009-07-23 15:20:19)Ostatnio zmodyfikował: -
Załącznik Nr 1 do Zarządzenia Nr 221/09
Typ pliku: DOC, Rozmiar: 30 KBWytworzył:Prezydent Miasta BolesławiecUdostępnił:Parubocza Agnieszka(2009-07-23 15:17:55)Ostatnio zmodyfikował: -
Zarządzenie Nr 221/08 z dnia 17 lipca 2009r. w sprawie przeznaczenia do sprzedaży nieruchomości gruntowej zabudowanej, położonej przy ul. Łąkowej nr 15 w Bolesławcu ? w drodze przetargu ustnego nieograniczonego
Typ pliku: DOC, Rozmiar: 39 KBWytworzył:Prezydent Miasta BolesławiecUdostępnił:Parubocza Agnieszka(2009-07-23 15:16:47)Ostatnio zmodyfikował: -
Załącznik do Zarządzenia Nr 220/09
Typ pliku: DOC, Rozmiar: 45 KBWytworzył:Prezydent Miasta BolesławiecUdostępnił:Parubocza Agnieszka(2009-07-20 16:00:07)Ostatnio zmodyfikował: -
Zarządzenie Nr 220/09 z dnia 16 lipca 2009r. w sprawie przeznaczenia do sprzedaży -na rzecz najemców- lokali mieszkalnych wraz ze sprzedażą ułamkowych części gruntu zabudowanego - w trybie bezprzetargowym.
Typ pliku: DOC, Rozmiar: 23 KBWytworzył:Prezydent Miasta BolesławiecUdostępnił:Parubocza Agnieszka(2009-07-20 15:59:26)Ostatnio zmodyfikował: -
Zarządzenie Nr 219/09 z dnia 16 lipca 2009r. w sprawie wyrażenia zgody na używanie herbu Gminy Miejskiej Bolesławiec na taksówce osobowej
Typ pliku: DOC, Rozmiar: 27 KBWytworzył:Prezydent Miasta BolesławiecUdostępnił:Parubocza Agnieszka(2009-07-20 15:58:15)Ostatnio zmodyfikował: -
Zarządzenie Nr 218/09 z dnia 16 lipca 2009r. w sprawie wyrażenia zgody na używanie herbu Gminy Miejskiej Bolesławiec przez Polski Związek Niewidomych Koło w Bolesławcu
Typ pliku: DOC, Rozmiar: 28 KBWytworzył:Prezydent Miasta BolesławiecUdostępnił:Parubocza Agnieszka(2009-07-20 15:57:10)Ostatnio zmodyfikował: -
Załącznik do Zarządzenia Nr 217/09
Typ pliku: XLS, Rozmiar: 111 KBWytworzył:Prezydent Miasta BolesławiecUdostępnił:Parubocza Agnieszka(2009-07-20 15:55:49)Ostatnio zmodyfikował: -
Zarządzenie Nr 217/09 z dnia 15 lipca 2009 r. w sprawie zmian w budżecie miasta na 2009 r.
Typ pliku: DOC, Rozmiar: 46 KBWytworzył:Prezydent Miasta BolesławiecUdostępnił:Parubocza Agnieszka(2009-07-20 15:55:11)Ostatnio zmodyfikował: -
Zarządzenie Nr 216/09 z dnia 14 lipca 2009 r. w sprawie powołania komisji do przeprowadzenia postępowania o udzielenie zamówienia publicznego na zadanie inwestycyjne pn. "Budowa dwóch odcinków drogi z odwodnieniem i oświetleniem przy ul. Śluzowej w Bolesławcu wraz z wykonaniem zabezpieczenia skarpy drogowej murem oporowym z gabionów"
Typ pliku: DOC, Rozmiar: 32 KBWytworzył:Prezydent Miasta BolesławiecUdostępnił:Parubocza Agnieszka(2009-07-20 15:28:51)Ostatnio zmodyfikował:Parubocza Agnieszka(2009-07-20 15:29:30) -
Załącznik do Zarządzenia Nr 215/09
Typ pliku: DOC, Rozmiar: 37 KBWytworzył:Prezydent Miasta BolesławiecUdostępnił:Parubocza Agnieszka(2009-07-20 15:25:56)Ostatnio zmodyfikował: -
Zarządzenie Nr 215/09 z dnia 14 lipca 2009r. w sprawie przeznaczenia gruntów położonych w Bolesławcu - do oddania w dzierżawę na okres 3 lat - w drodze bezprzetargowej.
Typ pliku: DOC, Rozmiar: 35 KBWytworzył:Prezydent Miasta BolesławiecUdostępnił:Parubocza Agnieszka(2009-07-20 15:25:10)Ostatnio zmodyfikował: -
Załącznik do Zarządzenia Nr 214/09
Typ pliku: DOC, Rozmiar: 29 KBWytworzył:Prezydent Miasta BolesławiecUdostępnił:Parubocza Agnieszka(2009-07-20 15:23:49)Ostatnio zmodyfikował: -
Zarządzenie Nr 214/09 z dnia 10 lipca 2009r. w sprawie przeznaczenia do sprzedaży - na rzecz najemców - garaży wraz ze sprzedażą gruntu zabudowanego garażami - w trybie bezprzetargowym (zmienione zarządzeniem Nr 103/10 Prezydenta Miasta Bolesławiec z dnia 15.03.2010 r.)
Typ pliku: DOC, Rozmiar: 28 KBWytworzył:Prezydent Miasta BolesławiecUdostępnił:Parubocza Agnieszka(2009-07-20 15:22:03)Ostatnio zmodyfikował:Cieśla Katarzyna(2010-03-23 14:06:23) -
Załącznik do Zarządzenia Nr 213/09
Typ pliku: DOC, Rozmiar: 82 KBWytworzył:Prezydent Miasta BolesławiecUdostępnił:Parubocza Agnieszka(2009-07-13 09:49:54)Ostatnio zmodyfikował: -
Zarządzenie Nr 213/09 z dnia 9 lipca 2009 r. w sprawie przeznaczenia do sprzedaży -na rzecz najemców- lokali mieszkalnych wraz ze sprzedażą ułamkowych części gruntu zabudowanego budynkami - w trybie bezprzetargowym.
Typ pliku: DOC, Rozmiar: 23 KBWytworzył:Prezydent Miasta BolesławiecUdostępnił:Parubocza Agnieszka(2009-07-13 09:49:02)Ostatnio zmodyfikował: -
Załącznik do Zarządzenia Nr 212/09
Typ pliku: DOC, Rozmiar: 31 KBWytworzył:Prezydent Miasta BolesławiecUdostępnił:Parubocza Agnieszka(2009-07-08 14:38:04)Ostatnio zmodyfikował: -
Zarządzenie Nr 212/09 z dnia 3 lipca 2009r. w sprawie przeznaczenia gruntu położonego przy Placu Wolności w Bolesławcu do oddania w dzierżawę na okres 3 lat - w drodze bezprzetargowej.
Typ pliku: DOC, Rozmiar: 31 KBWytworzył:Prezydent Miasta BolesławiecUdostępnił:Parubocza Agnieszka(2009-07-08 14:37:32)Ostatnio zmodyfikował: -
Zarządzenie Nr 211/09 z dnia 2 lipca 2009r. w sprawie przyznania nagrody rocznej za 2008 r. Pani Dorocie Babijczuk-Borucińskiej ? Prezesowi Zarządu Miejskiego Zakładu Rehabilitacji Leczniczej Spółka z o.o. w Bolesławcu
Typ pliku: DOC, Rozmiar: 26 KBWytworzył:Prezydent Miasta BolesławiecUdostępnił:Parubocza Agnieszka(2009-07-13 09:40:52)Ostatnio zmodyfikował: -
Zarządzenie Nr 210/09 z dnia 1 lipca 2009r. o zmianie załącznika do zarządzenia Nr 243/08 Prezydenta Miasta Bolesławiec z dnia 1 sierpnia 2008r. w sprawie regulaminu przeprowadzania kontroli finansowej w podległych i nadzorowanych jednostkach organizacyjnych Gminy Miejskiej Bolesławiec.
Typ pliku: DOC, Rozmiar: 31 KBWytworzył:Prezydent Miasta BolesławiecUdostępnił:Parubocza Agnieszka(2009-07-03 11:55:35)Ostatnio zmodyfikował: -
Zarządzenie Nr 209/09 z dnia 30 czerwca 2009r. w sprawie powołania Komisji do przeprowadzenia postępowania o udzielenie zamówienia publicznego: wykonanie i założenie ewidencji publicznych dróg gminnych oraz drogowych obiektów inżynierskich w granicach miasta bolesławiec, wraz z dokonaniem oceny stanu technicznego publicznych dróg gminnych.
Typ pliku: DOC, Rozmiar: 28 KBWytworzył:Prezydent Miasta BolesławiecUdostępnił:Parubocza Agnieszka(2009-07-03 11:52:56)Ostatnio zmodyfikował:Parubocza Agnieszka(2009-07-13 09:42:44) -
Zarządzenie Nr 208/09 z dnia 30 czerwca 2009r. w sprawie powołania Komisji do przeprowadzenia postępowania o udzielenie zamówienia publicznego: Budowa sieci wodociągowej i kanalizacji ogólnospławnej dla uzbrojenia działek budowlanych przy ul. Lubańskiej w Bolesławcu.
Typ pliku: DOC, Rozmiar: 27 KBWytworzył:Prezydent Miasta BolesławiecUdostępnił:Parubocza Agnieszka(2009-07-03 11:50:32)Ostatnio zmodyfikował: -
Zarządzenie Nr 207/09 z dnia 30 czerwca 2009r. w sprawie przeznaczenia gruntu niezabudowanego, położonego w Bolesławcu przy ul. Dolne Młyny - do sprzedaży w drodze przetargu ustnego nieograniczonego.
Typ pliku: DOCX, Rozmiar: 11 KBWytworzył:Prezydent Miasta BolesławiecUdostępnił:Parubocza Agnieszka(2009-07-03 11:43:34)Ostatnio zmodyfikował: -
Załącznik do Zarządzenia Nr 206/09
Typ pliku: DOC, Rozmiar: 31 KBWytworzył:Prezydent Miasta BolesławiecUdostępnił:Parubocza Agnieszka(2009-07-13 09:46:57)Ostatnio zmodyfikował: -
Zarządzenie Nr 206/09 z dnia 30 czerwca 2009 r. w sprawie przeznaczenia gruntu położonego przy ul. Różanej w Bolesławcu do oddania w dzierżawę na okres 3 lat - w drodze bezprzetargowej.
Typ pliku: DOC, Rozmiar: 33 KBWytworzył:Prezydent Miasta BolesławiecUdostępnił:Parubocza Agnieszka(2009-07-13 09:45:22)Ostatnio zmodyfikował: -
Zarządzenie Nr 205/09 z dnia 30 czerwca 2009r. w sprawie obniżenia ceny wywoławczej dla nieruchomości gruntowej, położonej w Bolesławcu przy Al. Tysiąclecia - przeznaczonej do sprzedaży pod zabudowę usługową - w drodze II przetargu ustnego nieograniczonego.
Typ pliku: DOCX, Rozmiar: 12 KBWytworzył:Prezydent Miasta BolesławiecUdostępnił:Parubocza Agnieszka(2009-07-03 11:41:33)Ostatnio zmodyfikował: -
Załącznik do Zarządzenia Nr 204/09
Typ pliku: DOC, Rozmiar: 32 KBWytworzył:Prezydent Miasta BolesławiecUdostępnił:Parubocza Agnieszka(2009-07-03 11:39:48)Ostatnio zmodyfikował:Parubocza Agnieszka(2009-07-03 11:42:00) -
Zarządzenie Nr 204/09 z dnia 30 zcerwca 2009r. w sprawie przeznaczenia nieruchomości gruntowej zabudowanej położonej przy ul. Bankowej w Bolesławcu do sprzedaży - w drodze przetargu ustnego ograniczonego .
Typ pliku: DOC, Rozmiar: 30 KBWytworzył:Prezydent Miasta BolesławiecUdostępnił:Parubocza Agnieszka(2009-07-03 11:39:05)Ostatnio zmodyfikował: -
Załacznik do Zarządzenia Nr 203/09
Typ pliku: DOCX, Rozmiar: 13 KBWytworzył:Prezydent Miasta BolesławiecUdostępnił:Parubocza Agnieszka(2009-07-03 11:38:07)Ostatnio zmodyfikował: -
Zarządzenie Nr 203/09 z dnia 30 czerwca 2009r. w sprawie przeznaczenia gruntu niezabudowanego, położonego w Bolesławcu przy ul. Niepodległości - do oddania w użytkowanie wieczyste na 99 lat - w drodze przetargu ustnego nieograniczonego
Typ pliku: DOCX, Rozmiar: 12 KBWytworzył:Prezydent Miasta BolesławiecUdostępnił:Parubocza Agnieszka(2009-07-03 11:37:25)Ostatnio zmodyfikował: -
Załącznik do Zarządzenia Nr 202/09
Typ pliku: DOC, Rozmiar: 29 KBWytworzył:Prezydent miasta BolesławiecUdostępnił:Parubocza Agnieszka(2009-07-03 11:35:35)Ostatnio zmodyfikował: -
Zarządzenie Nr 202/09 z dnia czerwca 2009r. w sprawie przeznaczenia do sprzedaży - na rzecz najemców - garaży wraz ze sprzedażą gruntu zabudowanego garażami - w trybie bezprzetargowym.
Typ pliku: DOC, Rozmiar: 29 KBWytworzył:Prezydent Miasta BolesławiecUdostępnił:Parubocza Agnieszka(2009-07-03 11:24:15)Ostatnio zmodyfikował:Parubocza Agnieszka(2009-07-03 11:25:13) -
Załącznik do Zarządzenia Nr 201/09
Typ pliku: XLS, Rozmiar: 109 KBWytworzył:Prezydent Miasta BolesławiecUdostępnił:Parubocza Agnieszka(2009-07-03 11:14:15)Ostatnio zmodyfikował: -
Zarządzenir Nr 201/09 z dnia 30 czerwca 2009r. w sprawie zmian w budżecie miasta na 2009 r.
Typ pliku: DOC, Rozmiar: 47 KBWytworzył:Prezydent Miasta BolesławiecUdostępnił:Parubocza Agnieszka(2009-07-03 11:13:16)Ostatnio zmodyfikował: